62㎡中古マンションリノベ WEB内覧会①|3LDK→2LDKで「狭くても快適」をつくった全体像
「広い家=快適」とは限らない。
62㎡の中古マンションをリノベして暮らしてみて、私はそう実感しました。
このWEB内覧会シリーズは、私自身がリノベ検討中に“他の方の実例記事”に何度も助けられたので、今度は逆に「どなたかの判断材料になれば」という思いでまとめています。
写真も間取りも、完璧な正解を見せたいわけではなく、62㎡でどう考えて、どう優先順位をつけたかを丁寧に残します。
この記事①では、各部屋の細かい紹介よりも、まずは
3LDK→2LDKにした理由と、「狭くても快適」をつくる全体設計(考え方)をお話しします。
あわせて、中古マンション×リノベは「物件」「管理(規約)」「設計」「施工」を一緒に進める“共同プロジェクト”だと感じた場面が多かったです。流れや考え方は別記事にまとめているので、よければこちらもどうぞ。
→家づくりは「共同プロジェクト」施主と業者の関係性について

- 62㎡で“快適さ”を優先するために、最初に決めたこと
- 3LDK→2LDKにした理由(LDKを整える優先順位)
- 収納は「増やす」より「戻しやすい仕組み」を作る考え方
- 配管や水回り移動など、中古マンション特有の「できる/できない」の捉え方
62㎡で快適にするために、最初に決めたこと

62㎡では、希望をすべて同時に叶えるのは簡単ではありません。
部屋数も、収納も、広いLDKも……大切にしたい要素が増えるほど、どこかに無理が出やすくなります。
だから我が家は、最初にこの3つを決めました。
- 部屋数にこだわりすぎない(3LDKに固執しない)
- LDKに“余白”を作って、暮らしの中心を快適にする
- 限られたスペースで「最低限必要な収納」を、ジャンルごとに成立させる
この順番を先に決めると、素材や設備の好みよりも先に、「暮らしのストレスが減る設計」が見えてきます。
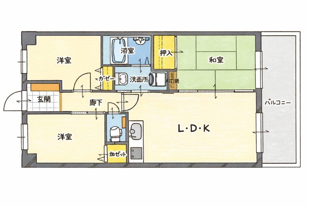
3LDK→2LDKにした理由|「個室」より「共有部」の満足度を上げたかった
3LDKのままだと、部屋数を優先する分、LDKがコンパクトになったり、家具配置が難しい形になったりしやすいです。
すると動きやすさが損なわれ、結果として物が一時置きになりやすく、散らかりやすくなると感じました。
そこで我が家は、暮らしの中心(LDK)を整えるほうを優先しました。
- 家族が集まる場所が整うと、家全体が散らかりにくい
- 家具の圧迫感が減ると、同じ面積でも“広く感じる”
- 将来の暮らし方の変化にも対応しやすい
「部屋数が減るのは不安」という気持ちもありましたが、結果として、LDKが整うことが暮らしのストレスを一番減らしてくれました。
収納は「たくさん」より「ジャンル分け」で最低限を成立させた
ここは、私の実感として大きかったところです。
私は収納をたくさん作ったわけではありません。けれど、62㎡の限られたスペースでも、最低限必要な収納はどうしてもありました。
そこで我が家は、大枠にジャンルを決めてに収納スペース(置き場のゾーン)を設けました。
理由は、「使ったら戻す」を“すべて”細かく定位置管理するよりも、私の場合は、在庫の確認や、物が増えたときの把握がかえって難しく感じたからです。
我が家でどうしても必要だった収納は、大きく分けて2つです。
- 服・布団・季節の家電をしまう場所(扇風機、ヒーターなど)
- 日用品・工具類・備蓄をしまう場所(トイレットペーパー、ティッシュなど)
ライフスタイルやライフステージによって物の種類に変動があるので、ざっくり収納できるスペースがほしかったのです。
その他は使う場所での保管
- 食品の在庫はキッチンスペース内のみ
- 化粧品や細々した衛生品類は洗面所スペースのみ
- 文具・書類はワークスペース内のみ
収納場所を固定したことで、モノの量も増やさないように心がけています。
Before|一部屋を収納部屋として使っていた頃のリアル

以前の我が家は、モノの定位置スペースを確保するのが難しくて、一部屋(左下の洋室)を“収納部屋”として使っていました。
壁側にはDIYで作った棚に洋服を掛け、収納ケースを並べる。反対側には無印のスチールラックを置いて、日用品のストック類と趣味の登山道具をまとめて保管していました。
この方法は「探し物が減る」反面、“収納するための部屋”が必要になります。
62㎡では、その1部屋が家全体の使い方に影響してしまうのが悩みでした。
また私は、ジャンルごとに分けて「使う場所それぞれにストックを分散する方法」があまり合いませんでした。
在庫管理が煩雑になりやすく、家族にも伝わりにくかったからです。
そのため、まとまった場所にストックを集約する方法が自分には合っていました。
After|買い物後の収納が“一発で決まる”仕組み

リノベ後は、ストックの置き場(定位置)を決めたことで、買い物後の収納が一発で決まるようになりました。
我が家は月に1回、日用品をまとめ買いするのですが、トイレットペーパーやティッシュなどの定位置があると、帰宅後に「ぴたっ」と収まります。
収納スペースに限りがあるため、シューズクロークの一部を日用品のストック置き場として使っています(工具や水などもまとめています)。
買い物に行く前も定位置を見れば、何が足りないかが一目でわかるので、在庫管理がラクになりました。
「シューズクローク=靴」という固定観念を外す
シューズクロークといっても、「靴を入れなければならない」と決めつける必要はないと思っています。
我が家はリノベ前から、シューズクロークを**“収納スペース”として柔軟に使う**発想でした。
「〇〇を収納する場所」と名前を付けると、つい“それを入れるべき”と縛られてしまいがちです。
でも小さな住まいでは、用途を固定しすぎないほうが、暮らしに合わせて収納を最適化しやすい。
“場所の名前に合わせる”のではなく、“暮らしに合わせて使い方を決める”——この発想の転換も、狭くても快適に暮らすための大切なポイントだと感じています。
私は「使う場所に分散してストックする」よりも、日用品は決まった場所にまとめてストックする方が把握しやすいタイプだったので、この方法が合っていたと思います。
リノベは見た目より先に「配管・下地」を整えた

我が家は、いわゆる“表面をきれいにするだけ”ではなく、一度、住戸内(占有部分)を解体し、配管も“できる範囲で”やり直して綺麗にしてもらいました。
中古マンションは、表面がきれいでも、壁の中・床下の設備は年数が積み重なっています。ここを後回しにすると、住み始めてから「漏水・臭い・詰まり」など、見えない不安が残りやすいと感じました。
実は、中古マンション購入後に水漏れを経験しました。原因は配管の経年劣化で、配管にヒビが入り、少しずつ漏れていたものです。補修後は大きな問題はなかったのですが、この経験があったので、リノベをするなら住戸内(占有部分)の配管は、できる範囲で一度きれいにやり替えたいと思いました。
見た目が新しくなっても、見えない部分に不安が残ると落ち着かない。私にとっては、配管更新は“安心を買う”選択だったと思います。
→(内部リンク)中古マンション購入後に水漏れした話(体験談)※準備中
※マンションでは、PS(パイプスペース)内の縦管など共用部分に関わる配管が絡むことがあり、更新範囲や手続きは管理規約・管理組合のルール次第です(住戸内でも「全部自由に交換できる」とは限りません)。国交省の資料でも、共用部と専有部の配管更新を一体で行う考え方や留意点が示されています。
中古マンションは“できること”が条件で変わる(特に水回り)

中古マンションのリノベは、管理規約・構造・配管でできることが変わります。
特に水回りは「好きな場所に大きく動かせる」とは限りません。
水回り移動が難しくなる代表的な理由は、ざっくり言うとこの3つです。
- PS(パイプスペース)の位置は基本動かせない
- 排水には勾配が必要(距離が伸びるほど条件が厳しくなる)
- 床構造(直床/二重床など)で自由度が変わる
だからこそ、私は見積もり前に次の点を早めに確認しました。
- 水回りは「どこまで移動できるか」(根拠=排水勾配・床下スペース)
- 配管更新は「どこまでが住戸側で更新できるか」(PS周り・専有/共用の扱い)
- 管理規約・工事申請の条件(共用部に関わる工事の手続き)
※②③は、業者さんが管理会社へ確認してくださいました。
「何ができて、何ができないか(または追加費用や条件が必要か)」の線引きが早いほど、手戻りが減って、後悔もしにくいと感じています。
私が思う「わが家の間取り」が向く人/向かない人
最後に、同じ62㎡でも合う・合わないはあると思うので、私の実感をまとめます。
向く人
- 長方形の間取り(よくある3LDKタイプ)で、暮らしやすく整えたい
- 収納は“たくさん”より、限られたスペースで最低限を確保したい
- 「全部を細かく定位置管理」より、**ジャンルごとに置き場(ゾーン)**を決めたい
- 日用品ストックは「分散」より、まとめて在庫管理したい
向かないかもしれない人
- ワンルームのように回遊できる(ぐるっと回れる)間取りを作りたい
- 水回りを大きく移動して理想の間取りを作りたい(※条件次第)
次回予告|WEB内覧会②は「LDK(狭くても広く見せる工夫)」へ
次回(②)では、いちばん変化が大きかったLDKの作り方を紹介します。
「3LDK→2LDKにして、どこがどうラクになったの?」を、配置・動線・暮らし方ベースでまとめる予定です。

なんとなくマンションリノベのイメージできた方や悩みが解決できたなら嬉しいです。
参考資料
国土交通省|マンション標準管理規約(最新版PDFあり)
https://www.mlit.go.jp/jutakukentiku/house/mansionkiyaku.html
国土交通省|長期修繕計画作成ガイドライン(PDF)
https://www.mlit.go.jp/jutakukentiku/house/content/001747006.pdf
無印良品の家|リノベ相談室「配管は古いまま?」
https://house.muji.com/life/clmn/renov_nandemo/soudan_221004/
リノベるジャーナル|中古マンションのフルリノベ期間
https://www.renoveru.jp/journal/25003
